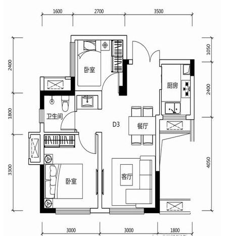
主任設計師羅盼望/高級家裝顧問劉剛,感謝合能橙中心業主劉丙先先生的信任項目地址:郫縣犀浦鎮銀河西街99號(地鐵2號線天河路站D出口)類型:小公寓風格:混搭建筑面積:50㎡,基裝+主材:32500元開發商:成都瑞興合能房地產開發有限公司物業:合能物業周邊配套:合能橙中心位于郫縣犀浦鎮銀河西街99號距離地鐵二號線僅50米,可享家樂福、沃爾瑪、歐尚、人人樂、百倫廣場等商業...

主任設計師羅盼望/高級家裝顧問劉剛,感謝合能橙中心業主劉丙先先生的信任
項目地址:郫縣犀浦鎮銀河西街99號 (地鐵2號線天河路站D出口)
類型:小公寓
風格:混搭
建筑面積:50㎡,基裝+主材:32500元

開發商:成都瑞興合能房地產開發有限公司
物業:合能物業
周邊配套:合能橙中心位于郫縣犀浦鎮銀河西街99號 距離地鐵二號線僅50米,可享家樂福、沃爾瑪、歐尚、人人樂、百倫廣場等商業配套,更有金蘋果西區花園幼兒園、犀浦鎮幼兒園、成都外國語附屬小學、梓潼小學、成都樹德聯合學校、成都外國語學校、郫縣四中、成都國際學校、成都市實驗外國語學校、西南交大、電子科技大學清水河校區等名校環繞,臨近四川省公路醫院、郫縣中西結合醫院等大型醫療場所。
人氣設計師 更多設計師
Copyright ? 四川鴻信建筑裝飾工程有限公司 版權所有 Sitemap 蜀ICP備13023437號-4 技術支持:時代匯創
免費獲取裝修報價
已有10380位業主獲得裝修預算
樓盤名稱: 房屋面積:
房屋戶型:
設計風格: 裝修檔次:
您的稱呼: 手機號碼:
*我們將會對您的信息進行嚴格保密